Skip to product information
Apartament 1+1 | A15 | Klensi | 21 Dhjetori
Kontakto në WhatsApp

Apartamenti 1+1 në katin e 3-të banim të rezidencës së re bashkëkohore afër kompleksit Magnet dhe Ish Fushës së Aviacionit ofron një cilësi të lartë ndërtimi. Projektuar me standarde moderne, ai siguron komoditet dhe funkcionalitet për jetesë urbane, duke kombinuar pozicionin strategjik me materialet dhe përfundimet e klasit superior. Një zgjedhje ideale për ata që kërkojnë stil dhe qëndrueshmëri në një ambient të sigurt dhe të qetë.

1+1 Financim PA Kolateral Veri - Perendim
Payment with Installments icon Këstet

1. 60% e vlerës me nënshkrimin e kontratës së të drejtave
2. 30% e vlerës deri në Gusht të 2026
3. 5% e vlerës deri në Dhjetor të 2026
4. 5% e vlerës me marrjen në dorëzim të celsave.

Keys icon Dorëzimi i Objektit
  • Gusht, 2027
Investment Process Icon (1. WhatsApp - 2. View the Property 3. Sign the documents Proçesi i Investimit
  1. Kontakto në WhatsApp për të rezervuar një vizitë të njësisë nga afër.
  2. Diskutojmë për kushtet dhe finalizimin e marrëveshjes së blerjes.
  3. Firmosja e kontratës së blerjes së njësisë nga palët dhe noterizimi.
  4. Rregjistrimi i kontratës në Agjensinë Shtetërore të Kadastrës.
  5. Lëshimi i Kartelës së Rregjistrimit (brenda 2-4 javësh).

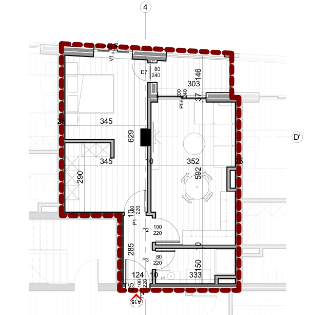
Sipërfaqe Totale

73.71 m2

don't include the text

Sipërfaqe Neto

64.69 m2

stairs icon

Kati teknik

4

Orientation Icon

Orientimi

construction icon

Statusi i Ndërtimit

Karabina

Ownership Paper icon

Dokumentacioni i Pasurisë

Kontratë e Noterizuar të Drejtash

Rezidenca Klensi

Pranë 21 Dhjetorit dhe Ish Fushës së Aviacionit po ndërtohet një rezidencë me kushte bashkohore banimi. Në këtë rezidencë ju ofrojmë planimetri të mirë organizuara dhe me mundësi kreditimi pa kolateral nëpërmjet bankës ProCredit.

Shiko Projektin

Zbulo planimetritë e rezidencës