Skip to product information
Apartament 2+1+2 | 36 | Rezidenca Eliston | Ish Fusha e Aviacionit
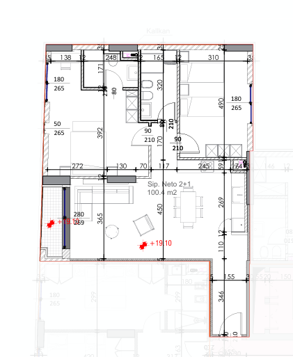
⬇️ Shiko Planimetrinë
Kontakto në WhatsApp

Apartamenti 2+1+2 në katin e 6-të banim ofron një hapësirë të bollshme me lartësi 3.1 metra, duke siguruar hapësirë dhe ndriçim natyral optimal. Pozicionuar pas Kompleksit Turdiu, në një nga zonat më të kërkuara të Tiranës, ky apartament garanton qetësi dhe akses të lehtë në shërbimet kryesore dhe lidhjet urbane. Ideal për ata që kërkojnë cilësi dhe komoditet në një ambient urban të zhvilluar.

2+1 Ish Fusha e Aviacionit Paguaj me këste Veri - Perendim
Payment with Installments icon Këstet

1. 50% me nënshkrimin e kontratës së blerjes
2. 20% deri në Janar 2026
3. 10% deri në Mars 2026
4. 10% me marrjen në dorëzim të pronës

Keys icon Dorëzimi i Objektit
  • Prill, 2026
Investment Process Icon (1. WhatsApp - 2. View the Property 3. Sign the documents Proçesi i Investimit
  1. Kontakto në WhatsApp për të rezervuar një vizitë të njësisë nga afër.
  2. Diskutojmë për kushtet dhe finalizimin e marrëveshjes së blerjes.
  3. Firmosja e kontratës së blerjes së njësisë nga palët dhe noterizimi.
  4. Rregjistrimi i kontratës në Agjensinë Shtetërore të Kadastrës.
  5. Lëshimi i Kartelës së Rregjistrimit (brenda 2-4 javësh).

Sipërfaqe Totale

116.20 m2

don't include the text

Sipërfaqe Neto

100.40 m2

stairs icon

Kati teknik

7

Orientation Icon

Orientimi

construction icon

Statusi i Ndërtimit

Rifiniturë, Fasadë

Ownership Paper icon

Dokumentacioni i Pasurisë

Kontratë të Drejtash e Noterizuar

Rezidenca Eliston

Rezidenca Eliston është një objekt banimi që po zhvillohet në zonën e Ish Fushës së Aviacionit pas Kompleksit Turdiu. Përfundon punimet në Prill të vitit 2026. Nxitoni të shikoni apartamentet e fundit në shitje 1+1 dhe 2+1.

Shiko Projektin

Zbulo planimetritë e rezidencës